本文
敦賀駅西広場公園の使用許可申請について
敦賀駅西広場公園(以下、駅西広場公園)の使用許可について、ご案内いたします。
イベントを利用しやすいように敦賀市知育・啓発施設「ちえなみき」(以下、ちえなみき)で受付業務を行っています。
駅西広場公園について
令和4年9月1日より供用開始しました駅西広場公園は日常的な憩いの場としての利用だけでなく、キッチンカーなどのイベントスペースとして使用することもできます。
使用する際には、「敦賀駅西広場公園の設置及び管理に関する条例(以下、条例)」及び「敦賀駅西広場公園の設置及び管理に関する条例施行規則(以下、施行規則)」に基づき、事前に使用許可を受ける必要があります。
(注釈)使用開始日から7日前までに使用許可申請書を提出してください。
使用方法についてこのページにまとめておりますので、ご確認ください。
お問い合わせ先
受付業務を駅西広場公園の目の前にございますちえなみきへ委託しております。
場所:敦賀市鉄輪町1丁目5番32号 otta内
ホームページ:<外部リンク>">https://chienamiki.jp/<外部リンク>
メールアドレス:chienamiki(at)maruzen.co.jp
電話:0770-47-5606
(注釈1)定休日にお電話された場合、丸善雄松堂株式会社名古屋支店へ転送されます(午前10時から午後5時30分まで)。
(注釈2)メールアドレスは「(at)」を「@」に置き換えてください。
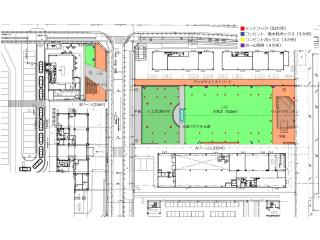
使用可能範囲、附属設備

平面図内の色塗りされている部分が敦賀駅西広場公園となり、使用可能範囲です。なお、キッチンカーなどの車両を使用する場合はデッキサイトストリートなどの平板ブロック上に限ります。
上記の附属設備が使用可能です。
通常、ポール照明はイベント等の使用の有無にかかわらず点灯していますが、夜間イベントで周りより明るくしたい場合は、各自で照明設備をご用意ください。なお、ポールの点灯時間は原則午後6時から午後10時までです。
また、下水道設備は備えておりませんので、ご注意ください。
使用料、変更・取り消しについて
使用料は次のとおりです。即日許可の場合を除き、前日までにちえなみき窓口に納付してください。
| 区分 | 算定基礎 | 使用時間 | 金額 |
|---|---|---|---|
|
駅西広場公園 |
1平方メートルにつき |
1時間あたり |
5円 |
|
電源設備 |
1か所につき |
24時間あたり |
150円 |
|
上水道 |
1か所につき |
24時間あたり |
100円 |
|
ポール照明 |
1か所につき |
1回あたり |
10円 |
(注釈1)駅西広場公園の使用料計算に当たり、面積に1平方メートル未満の端数が生じたときは1平方メートルとして計算し、1時間未満の端数が生じたときは1時間として計算します。
(注釈2)電源設備及び上水道の使用料計算に当たり、使用時間に24時間未満の端数が生じたときは24時間として計算します。
使用日時、面積、目的、物件など使用許可の内容と変更が生じたときは、「使用変更申請書」を提出してください。また、取り消す場合は「使用取消申請書」の提出をお願いします。
日時変更等により、追加の使用料が発生する場合は、追加分の納付が必要となります。
なお、使用許可書の発行後に取り消しされる場合につきましても、ちえなみき窓口で使用料の納付をお願いいたします。
一方で、使用日が災害などで駅西広場公園を閉鎖する、台風の暴風警戒区域に入ると予報されるなどの場合は、既納の使用料を還付しますので、「還付申請書」を提出してください。
即日許可について
以下の全てに該当する場合、使用許可申請書の提出をもって使用可能です。
- 過去に敦賀駅西広場公園を使用した実績があり、かつ過去に使用した際の内容と同一であること。
- テントフックを使用するもの(露店等)又はキッチンカー
- 減免申請でない
- 使用料を即日納付
ビラ配り、街頭インタビュー等について
ビラ配り、街頭インタビューなどの場所を特定しない利用につきましては、使用許可申請は不要ですが、無断で行うことはできません。事前に「一時使用願い」をご提出ください。
駅西広場公園の使用の手引き
本ページで説明している内容に加え、使用に当たっての注意事項などを取りまとめた手引きを作成しておりますので、ご確認ください。
駅西広場公園の予約状況
駅西広場公園の予約状況は、ちえなみきのホームページにて確認できます。
準備及び片付けを含めた時間となっています。また、一部の使用の場合は同時刻で使用可能な場合もございますので、ちえなみきまでお問い合わせください。
各種様式等
敦賀駅西広場公園の設置及び管理に関する条例 [PDFファイル/162KB]
敦賀駅西広場公園の設置及び管理に関する条例施行規則 [PDFファイル/111KB]
使用許可申請書 [Wordファイル/26KB]
使用許可申請書 [PDFファイル/58KB]
使用変更申請書 [Wordファイル/21KB]
使用変更申請書 [PDFファイル/57KB]
使用取消申請書 [Wordファイル/20KB]
使用取消申請書 [PDFファイル/52KB]
使用料免除申請書 [Wordファイル/21KB]
使用料免除申請書 [PDFファイル/55KB]
その他申請様式(後納、還付、原状変更) [Wordファイル/22KB]
その他申請様式(後納、還付、原状変更) [PDFファイル/72KB]
駅西広場公園平面図 [その他のファイル/1.06MB]
駅西広場公園平面図 [PDFファイル/900KB]
(マス目記載)駅西広場公園平面図 [その他のファイル/1.08MB]
(マス目記載)駅西広場公園平面図 [PDFファイル/913KB]
一時使用願い [Wordファイル/15KB]
一時使用願い [PDFファイル/80KB]


